Design Your Own Tiny Home
Let's turn your idea into reality.


What's next after submission?
We'll give you a quote based on your selections. In order to achieve your goal - ideally and financially, we'll find the best balance between what you want and your budget.
Do you like the quote?
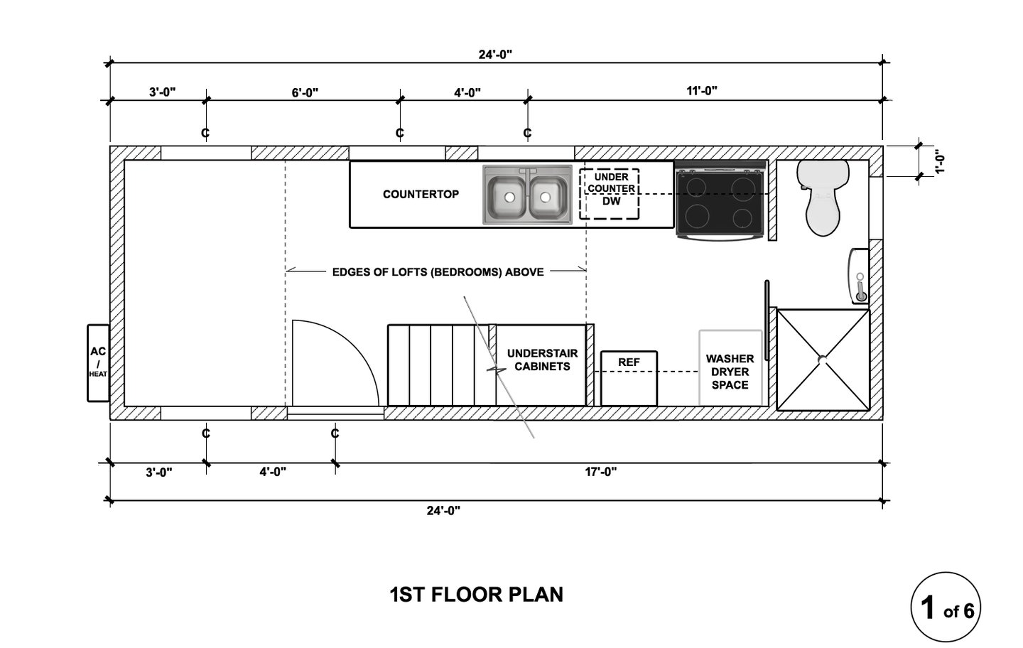
We'll draw plans and discuss details:
Such as specifying all appliances, colors of walls, cabinets and flooring, and size/numbers/positions of windows, and so on.
Exterior Siding Images
Cedar Lap Siding $$$


Cedar Textured Bead Panel - Paint ready $ (basic)


Center Bead Pine Boards $$$$
Interior Paneling Images


Textured Drywall $ (Basic)


Vinyl Flooring
Option 2 ($$)








Option 3
ButcherBlock Countertop Stain Color


Option 4
Option 1
ShipLap Siding Primed Smooth $$$








Option 5 ($$)




NOTE: Please fill all required fields before your submission.


Primed Smooth Fiber Cement Lap Siding $$
STANDARD ITEMS FOR ALL MODELS
(Unless the unit is specified for different uses: example: a movable hair salon / it doesn't need a kitchen set up, shower, and so on.)
Exterior: Cedar Textured Bead Panel / Interior: Textured Drywall
Metal Roofing and all building structures with insulation to code
3'x 6'-8" exterior flush door
Light at the entry door
4 prong plug-in electrical service (50 amps)
Ready for connection to sewer or septic system
Easy water hookup with garden hose style fittings
9000 BTU mini split (AC/Heater) with a remote controller
(Add-on on 16ft Bunk / 20ft Bunk / 20ft Unibox)
Rheem or equivalent tankless water heater
LED wall and ceiling lights (quantity varies on models)
Single-Hung windows with screens (quantity varies on models)
Kitchen sink with base cabinet
Custom butcherblock countertop
36" Shower
Full sized flushing toilet (unless upgraded)
Exhaust Fan
Waterproof vinyl flooring
(Add-on on 16ft Bunk / 20ft Bunk / 20ft Unibox)
Option 6




Option 7 ($$)




Option 8 ($$)




Option 9




Metal Roofing: Galvalume is the basic & all other colors are Add-on.
Golden Oak
Red Mahogany
Weathered Gray








Craftsman Tiny Homes is a subsidiary of KD Promotions LLC. ©2026 Craftsman Tiny Homes
Contact Us









