The Alpine















Virtual Tours
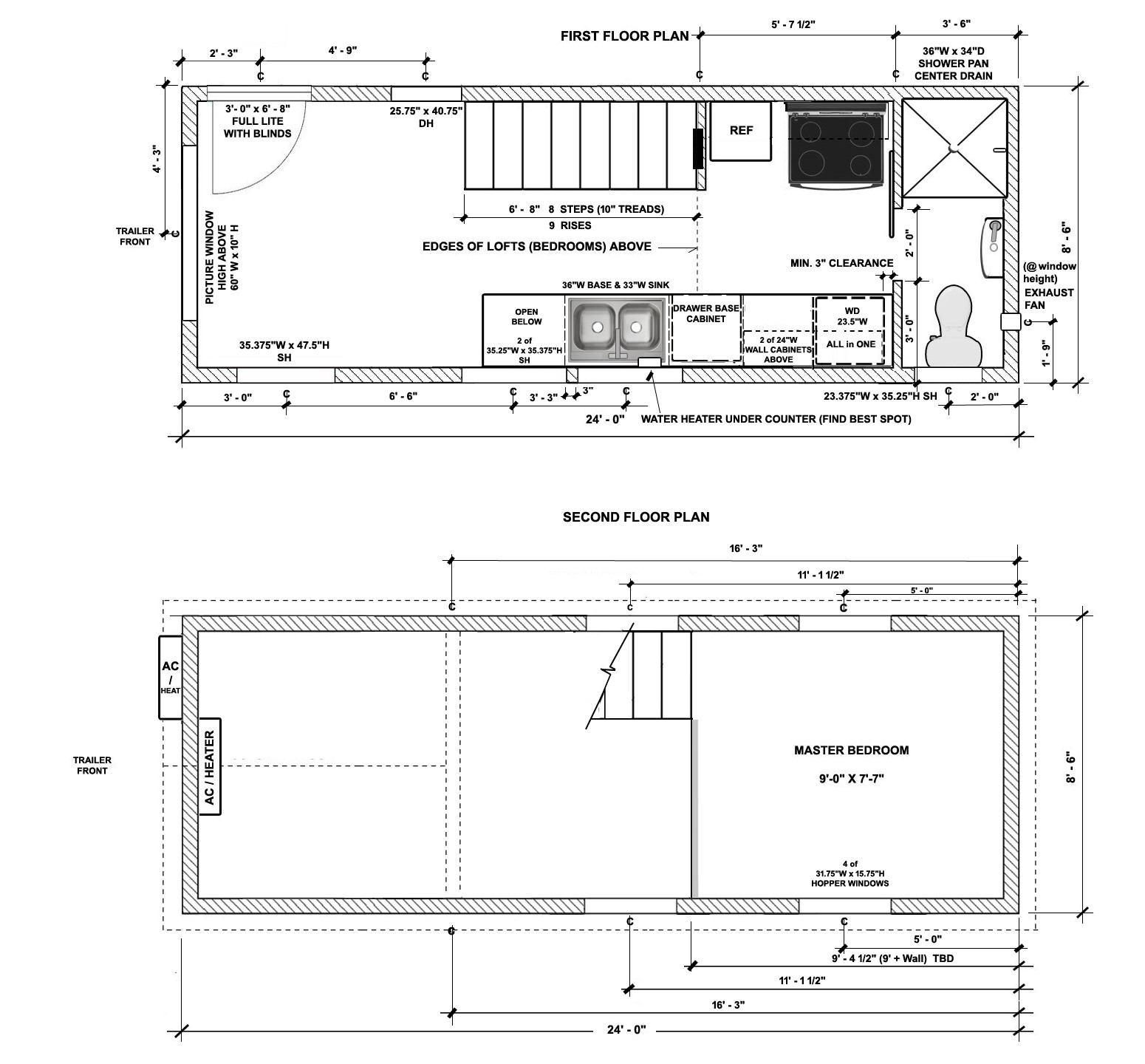
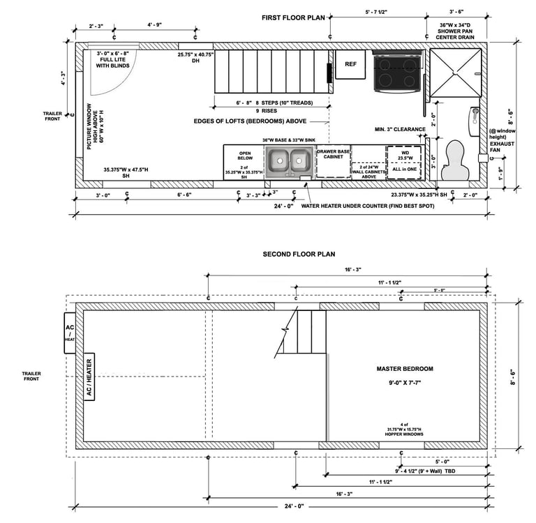
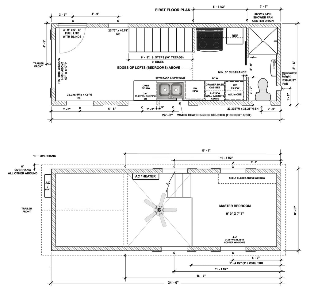
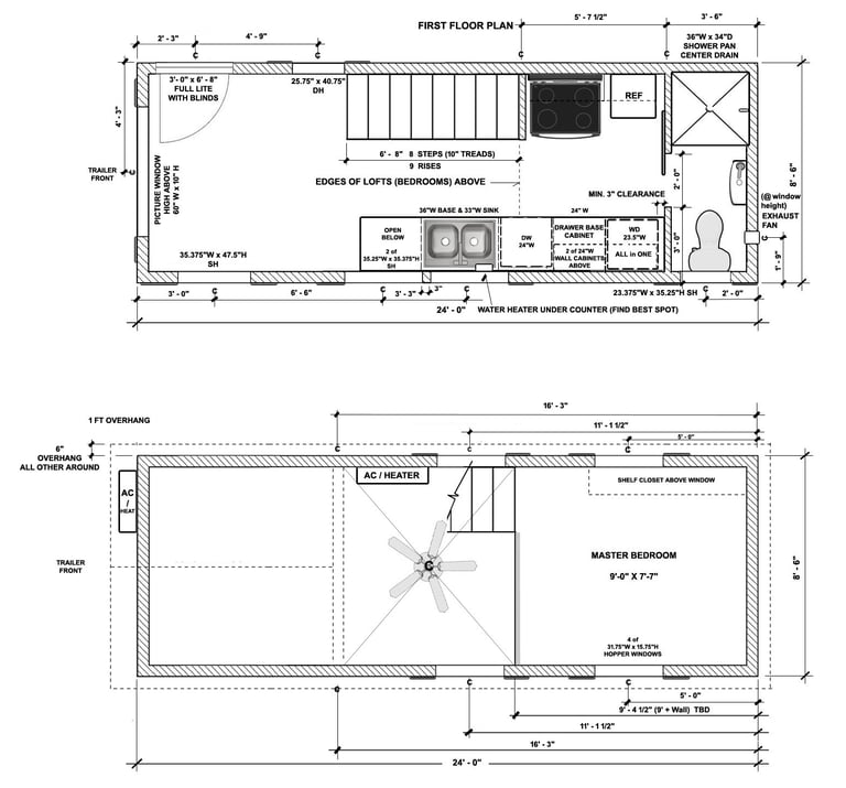
Bathroom
Living Room
Kitchen
Loft
Specs for Alpine 24 ft:
Kitchen (add-ons)
Full double deep well kitchen sink
Refrigerator with freezer (10.1 Cubic Feet)
Full sized microwave with fan & light
Full sized range with 4 burners
All-in-One Washer and Dryer
Butcherblock countertop (basic)
Top and base cabinets with drawers
Kitchen light
Exterior
13'-6" from the ground to the Roof
Durable metal roof
Stained Lap siding rough (Cedar Texture Panel Siding - Basic)
3'x 6'-8" exterior Full Lite door with Blinds (add-on)
Light at the entry door
4 prong plug-in electrical service (50 amps)
Ready for connection to sewer or septic system
Easy water hookup with garden hose style fittings
NOTE: You can request more Add-ons or Upgrades to your needs.
Bathroom
Custom Barn door (add-on)
36" Shower
Wall Mount Sink (add-on)
Medicine Cabinet Mirror (add-on)
Exhaust Fan
Full Sized Flushing Toilet
Towel Bar / Toilet Paper Hanger (Add-on)
Mirror Light (Add-on)
Interior in general
10'-7" Ceiling height (highest)
ShipLap Rough Siding (Textured Drywall - Basic)
All electric
9000 BTU Mini Split (AC/Heat) with remote control
Rheem or equivalent Tankless Water Heater
Stairs with rails
Water proof vinyl flooring
13" Circular Ceiling Fan Light with remote control (add-on)
LED Ceiling Light
9 Openable Windows with Screens
1 Fixed Window (add-on)
Order Your Own Alpine Here!




Alpine Sample Layout for 8.5 x 24
Craftsman Tiny Homes is a subsidiary of KD Promotions LLC. ©2026 Craftsman Tiny Homes
Contact Us









