The Summit - Modular ADU


PRIMARY or ADU on the permanent foundation
** Check the minimum S.F. requirements in your county
Introducing The Summit by Craftsman Tiny Homes — a high-quality modular ADU designed for affordability, efficiency, and modern living.
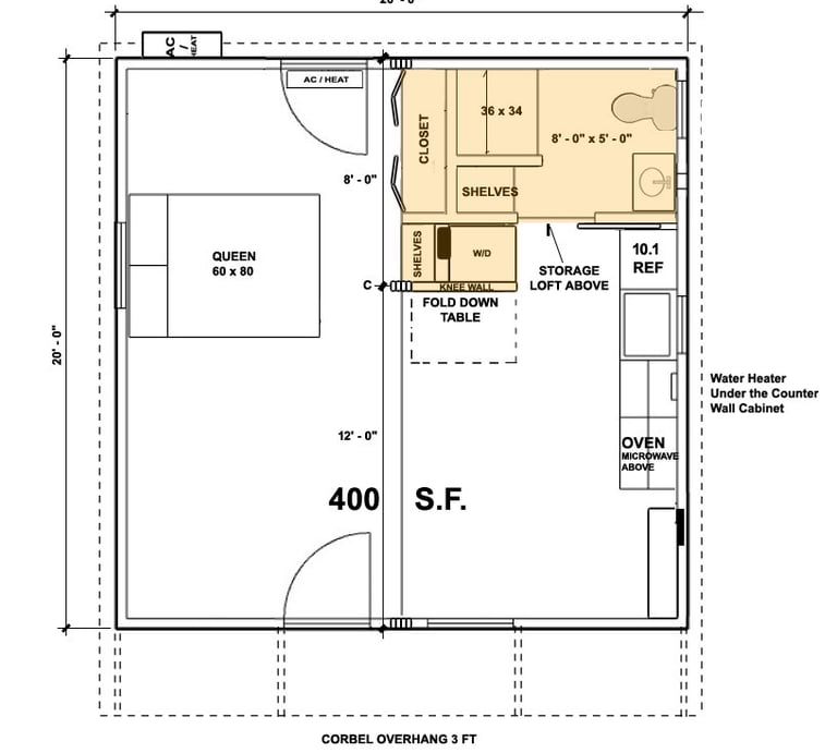
Built indoors in a climate-controlled environment to protect materials from heat, humidity, and rain, The Summit offers superior durability and faster build times compared to traditional construction. Starting at 400 square feet (20x20) and expandable up to 50 feet in length, 28 feet in Width, this double-wide modular home features high ceilings, a full kitchen with range, washer and dryer, a full-size bathroom with a 3x3 shower, front and rear entry doors, R-38 insulation, and a mini-split HVAC system for year-round comfort.
Designed to meet HUD standards and eligible for FHA financing, The Summit can be placed on a permanent foundation as an ADU or primary residence—even in tight spaces using crane placement.
With new ADU-friendly legislation in Florida and Georgia, homeowners now have more opportunity than ever to create affordable housing or generate rental income. Starting at just $65,500, The Summit is a smart, flexible solution for today’s housing needs.
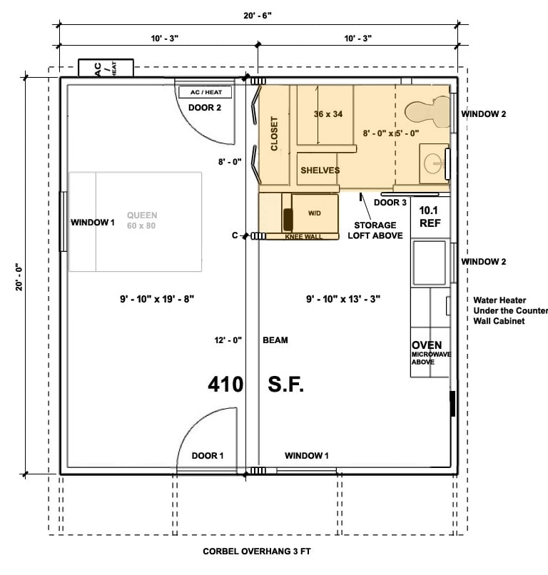
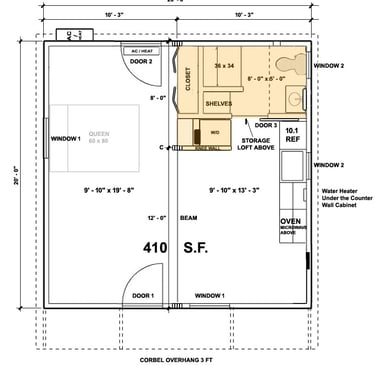
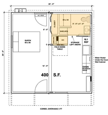
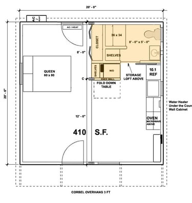
Gallery for Summit 410 S.F.








Specs for Summit 410 S.F.
Kitchen
Single Bowl kitchen sink
Refrigerator with freezer (10.1 Cubic Feet)
Full sized microwave with fan & light
Full sized range with 4 burners
Custom butcherblock countertop
Wall and Base cabinets with drawers
Exterior
13'-6" from the ground to the Roof
Durable metal roof
Cedar Textured Panel siding (more options)
3'x 6'-8" exterior 9 Lite door
2'-8"x6'-8" exterior 1/3 Lite Back door
Light at the both doors
Covered GFCI
4 prong plug-in electrical service (50 amps)
Ready for connection to sewer or septic system
Easy water hookup with garden hose style fittings
NOTE: You can request more Add-ons or Upgrades to your needs.
NO furnishing is included.
Bathroom
6 Panel-barn door
36" shower
Vanity Sink
Medicine cabinet mirror
Exhaust fan
Full sized flushing toilet
Towel bar / Toilet paper hanger
Built-in Shelves for Linen
Interior in general
10'-7" ceiling height (Highest)
Textured Drywall (more options as Add-on)
All electric
12000 BTU mini split (AC/Heater) with a remote controller
Rheem or equivalent tankless water heater
Waterproof vinyl flooring
42" ceiling fan light
LED ceiling lights
Windows with screens (1 in bathroom)
Washer / Dryer - All in One with Countertop above
Closet with bi-folding doors
Order Summit Here!
Summit Suggested Floor Plans
410 S.F. (20.5 x 20)
800 S.F. (20x40) Plan is coming up soon!


Craftsman Tiny Homes is a subsidiary of KD Promotions LLC. ©2026 Craftsman Tiny Homes
Contact Us









