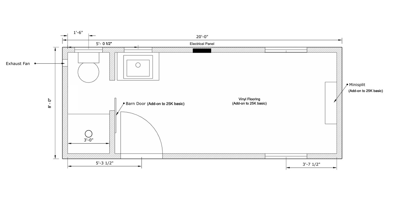
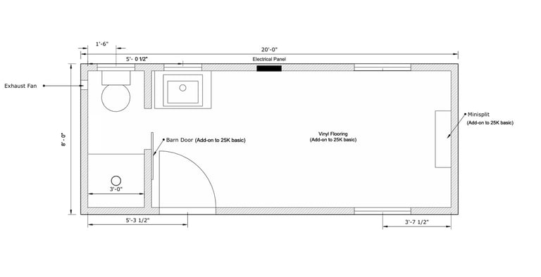
The Unibox









Specs of basic items included:
Kitchen
Single kitchen sink
Custom butcherblock countertop
3' Base sink cabinet (unfinished)
Exterior
3'x 6'-8" exterior door
Light at the entry door
4 prong plug-in electrical service (50 amps)
Ready for connection to sewer or septic system
Easy water hookup with garden hose style fittings
Bathroom
36" Shower
Full sized flushing toilet
Exhaust Fan
NOTE: Furnishings are NOT included.
Interior in general
Up to 8' ceiling height (9' on High Cube $$$)
One Story
All electric
9000 BTU mini split (AC/Heater) with a remote controller (Add-on on 20ft Unit)
Rheem or equivalent tankless water heater
Textured Drywall
Waterproof vinyl flooring (Add-on on 20ft Unit)
LED wall and ceiling lights
3 openable white framed windows w/ screens




8' x 20'




To order or request a quote, please fill the form.
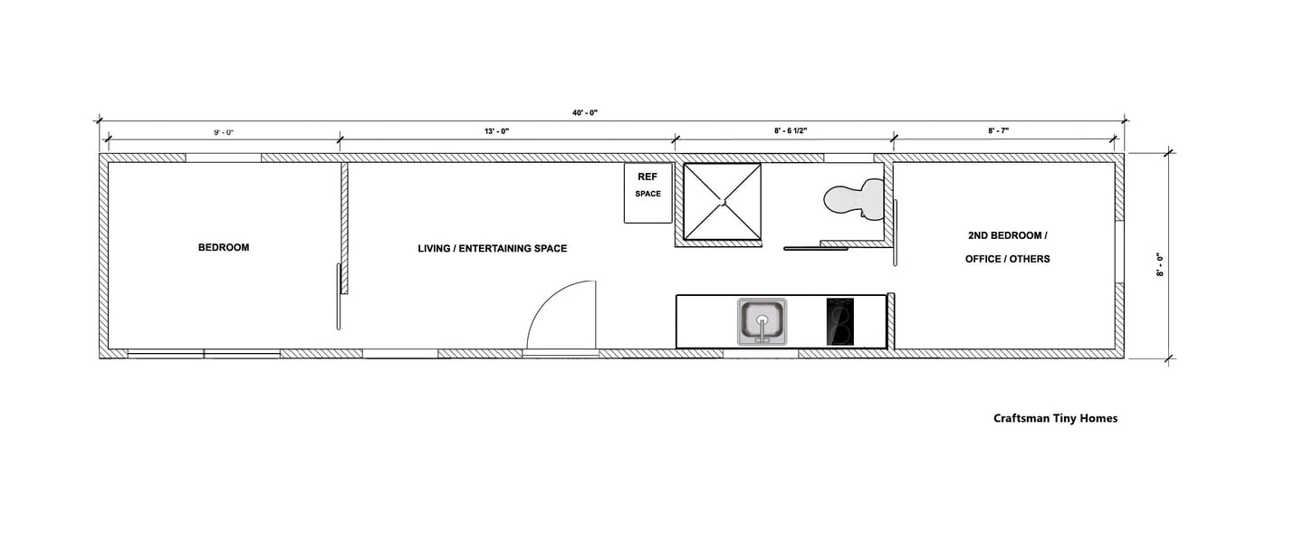
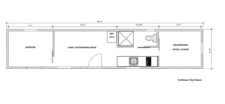
8' x 40'
8' x 20' + 8' x 40'


This is a sample Floor Plan.
If you would like to build a custom house, visit here.
Check if you are eligible for financing
Craftsman Tiny Homes is a subsidiary of KD Promotions LLC. ©2026 Craftsman Tiny Homes
Contact Us









